Unser Ferienhaus liegt im wunderschönen Ferienpark "Am Meer" in Burhave.

 

Rückseite
Vorderseite
 
 
 
 
 
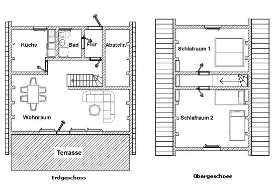
Grundrisse
 
Klicken Sie auf die Fotos, um sie zu vergrößern